

Garage Stalls: 3
Welcome to Royal Club! This community brings a sense of leisure and luxury to everyday living. Set along the pristine Royal Golf Course, it`s perfect for those who love a quick round or simply enjoy beautiful views. Just minutes from Stillwater, residents can explore local gems like the Saint Croix Vineyards, trendy shops, and great dining options, all while enjoying a neighborhood packed with charm and amenities.
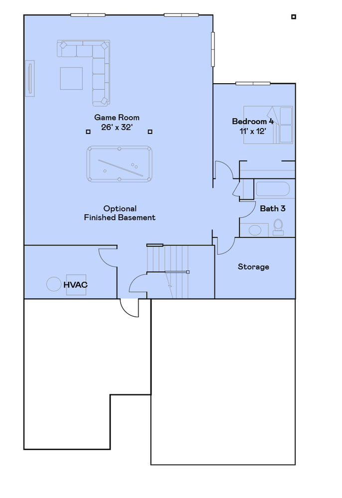
The Birmingham model offers 4 bedrooms, 3 bathrooms, and 3,274 square feet of stylish comfort. With its open-concept layout connecting the great room, dining area, and kitchen, the main floor is designed for easy living and impressive entertaining. Natural light fills the space, and the covered patio adds a touch of outdoor elegance. Downstairs, the finished basement is a dream with space for overnight guests and recreation.



