

Garage Stalls: 0
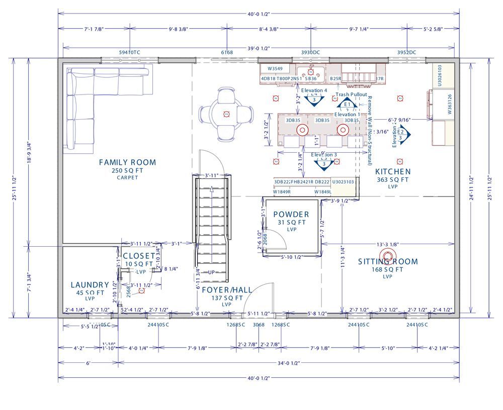
This remodel focused on the heart of the home—the kitchen—where we removed the wall separating it from the old formal dining room to create a spacious, functional layout that’s easy to navigate. Features include a large island with seating, added storage, pantry, birch cabinetry, quartz countertops, luxury vinyl floors, updated appliances and lighting, all designed to blend with the home`s style.
This remodel is an excellent example of how thoughtful design can make a home truly work for the way a family lives. The original layout didn’t make the best use of space. The kitchen was too small, and the main level felt limited, lacking the open plan that would make family time easier and more connected. By removing the wall between the kitchen and the formal dining room, the renovation created a much larger, open-concept kitchen that became the heart of the home—a bright, welcoming space designed for everyday living.
The new kitchen was planned not just for looks, but for real-life use. A spacious island with seating serves as a central gathering place for casual meals, homework sessions, or time spent with friends. The open layout improves movement through the space, even on busy mornings, while a large pantry and added storage help keep everything organized and reduce daily clutter.
What truly sets this project apart is the way the homeowners chose to focus their budget on the spaces that would have the greatest impact. Rather than attempting to renovate the entire home at once, they invested in the kitchen—the part of the house where they spend the most time—to create a result that was genuinely transformative. This careful approach allowed them to prioritize meaningful upgrades: warm birch cabinetry that blends with the home`s existing honey oak trim, timeless quartz countertops, a custom birch range hood that serves as a beautiful focal point, durable luxury vinyl flooring that stands up to daily life, and solid-wood millwork that adds lasting quality throughout.
By keeping existing finishes like the family room carpeting and wall colors, they were able to stay practical with their budget while still achieving the elevated feel they wanted. It’s a perfect example of luxury achieved through thoughtful, intentional choices that make everyday living better.
This remodel wasn’t simply about updating finishes. It was about making the home truly support the people who live there every day. It demonstrates that smart design and quality craftsmanship can deliver real, lasting improvements without needing to add square footage or stretch the budget too far. The result is a space that functions better, feels right, and genuinely reflects the way this family wants to live.



