

Garage Stalls: 3
Welcome Home to the Northstar by Pratt Homes! From the moment you arrive, you’ll be captivated by the welcoming wraparound front porch.
Step inside to a spacious foyer that opens into a warm and inviting Great Room featuring a cozy gas fireplace. The Great Room flows seamlessly into the designer kitchen, complete with custom cabinetry, quartz countertops, a striking backsplash, and a generous walk-in pantry. Just off the dining area, you`ll find a screen porch and grill deck—perfect for entertaining or relaxing with your friends & family.
Natural light fills the main level, thanks to an abundance of large windows. A private office near the entry provides a quiet space for work or study.
Upstairs, the luxurious owner`s suite offers a spa-like private bath with a walk-in shower that leads directly to a dream-worthy walk-in closet. The upper level also includes three additional bedrooms, a convenient laundry room, and plenty of space for everyone.
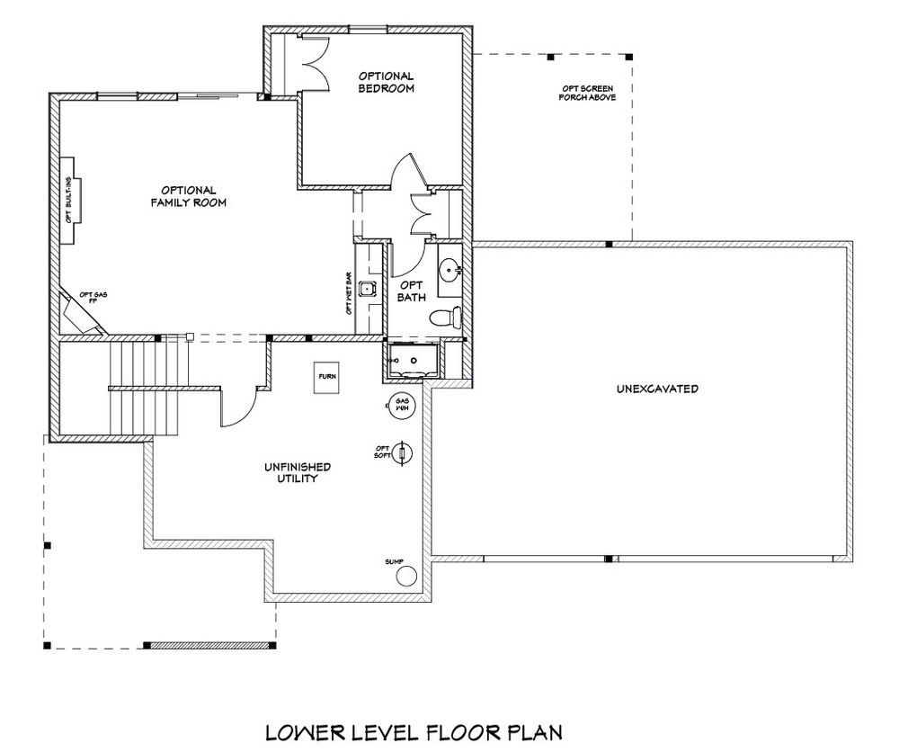
This model features the optional finished lower level, which includes a spacious family room with a cultured stone fireplace and a walk-up bar—an ideal setting for entertaining. You’ll also find a fifth bedroom, a ¾ bath, and a large utility room with ample storage.
Experience timeless design, thoughtful layout, and the craftsmanship that defines every home by Pratt.



