

Garage Stalls: 3
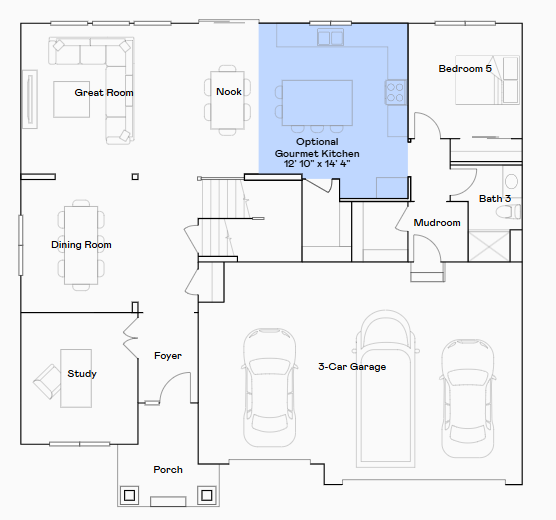
Step into the beautiful Itasca model home in the Arbor Bluff Landmark collection. With 5 bedrooms, 3 baths, and a thoughtful layout, this two-story design showcases a formal dining room, a spacious Great Room, and a chef-ready kitchen ideal for entertaining. Highlights include a private study, a main-level guest bedroom, a versatile loft upstairs, and a luxurious owner’s suite. Perfectly situated in Shakopee, this model offers a glimpse into refined living with nearby amenities and scenic surroundings.



