

Garage Stalls: 2
Welcome to Shadow Creek Estates! This charming townhome community is nearby the vibrant shops at Downtown Forest Lake as well as the recreational opportunities at Lakeside Memorial Park. Featuring three unique two-story floor plans, each with 3 bedrooms, 3 bathrooms, and ranging from 1,517 to 1,780 square feet, Shadow Creek Estates is ideal for homeowners seeking a blend of style, functionality, and suburban ease.
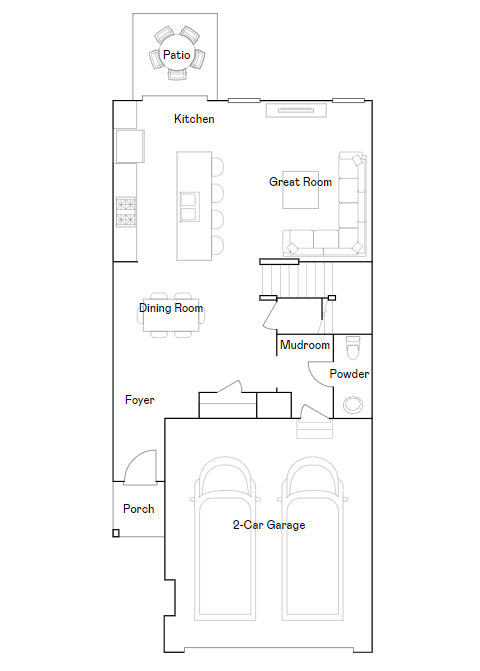
This St. Clair floor plan is 1,780 square feet and has a stunning two-story foyer that leads to a welcoming main level including a stylish kitchen with a large island and stainless steel appliances. The secondary bedrooms on the second floor are versatile and spacious while the luxurious owner`s suite connects to a spa-like bathroom and walk-in closet with ample storage space. Whether its entertaining guests or relaxing in peace, the St. Clair is perfect for every occasion!
The Liberty Collection in Pioneer Commons offers 2 unique townhome plans with HOA maintenance. This St. Clair model is an elegant, two-story, townhome that has an open-plan layout on the first floor among the kitchen, dining room, and great room. The first floor also features a mudroom and a powder room. The second floor is home to 2 secondary bedrooms, the owner`s suite, and the laundry room. Pioneer Commons if located in Little Canada, which features a variety of local stores and beautiful parks for recreational activities. Residents of this community are within close proximity to the Twin Cities as well as major retails including The Village of Blaine Shopping Center.



