

Garage Stalls: 0
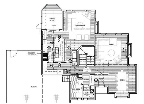
Going from a 1993 layout with awkward posts and angles to a refined and truly open space is perfect for this Bloomington family who relishes hosting large family gatherings. Guests are drawn to the coffee bar complete with glass-door cabinetry and nitro tap. Prime kitchen organization, 48-inch gas range, and full-slab quartz backsplash cater to joyful cooking. Come see how we made it all happen!
While the kitchen remodel is the primary focus, it’s really how the revitalized add-on spaces function and feel that make the homeowners delighted with the full benefits of the main level project. Starting with a new welcoming entryway bench and commanding fireplace wall refresh, visitors will notice these changes thoughtfully elevate the whole home. A mudroom makeover provides practical organization for the family’s outerwear, backpacks, and work bags.
Kitchen + More Highlights
**Beverage bar with nitro tap for cold-brewed coffee
**Kitchen organization for small appliances, cookie sheets and utensils, and more
**Quartz countertops and backsplash
**Entry bench and cabinetry to welcome guests
**Commanding fireplace wall makeover
**Mudroom updates to organize kids’ outerwear and backpacks
**Custom cabinetry for optimal and personalized storage
**Sharp-looking black hardware and lighting fixtures
**Hardwood floor throughout main level for cohesiveness and easy care
Come see how our AMEK Design + Build team partnered with the homeowners to create a space that’s truly theirs - ready to bring years of memorable celebrations for their family and friends.



