

Garage Stalls: 3
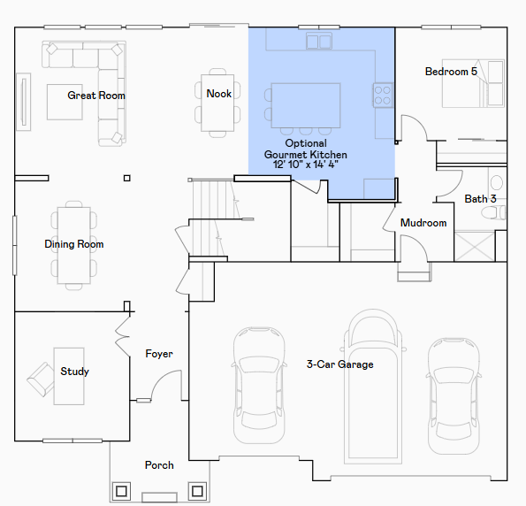
Welcome to Tavera Landmark, a stunning community of single-family homes in the highly acclaimed Wayzata School District. The Landmark Collection offers a range of floorplans, from 1,734 to 4,400 sq. ft., with options for 3-6 bedrooms and 2-5 bathrooms, perfectly designed for modern living. The beautiful Itasca model features an open-concept main level with a formal dining room, great room, breakfast nook, chef-ready kitchen, home office, and a guest bedroom. Upstairs, you’ll find a spacious loft, a luxurious owner’s suite with a private bath, three additional bedrooms, two bathrooms, and a convenient laundry room. The finished basement adds a recreation room, game room, and an extra bedroom. Located near shopping, dining, Corcoran City Park, and Rush Creek Golf Course, Tavera Landmark offers comfort, convenience, and elegance.



