

Garage Stalls: 3
This home will not be available for showing Easter Sunday.
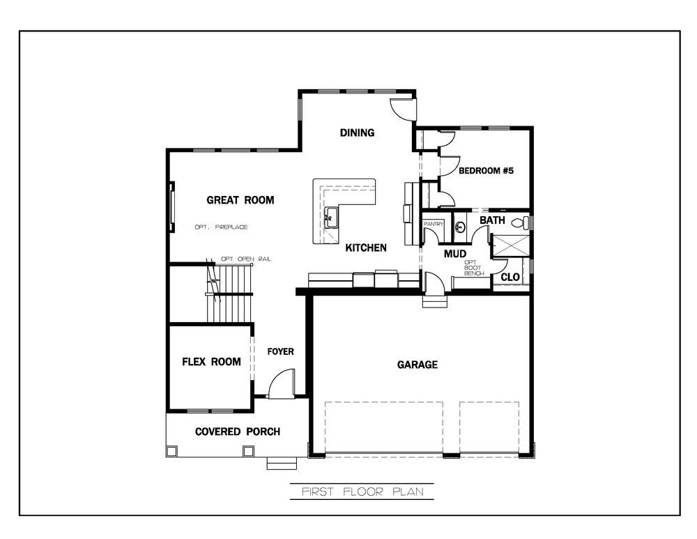
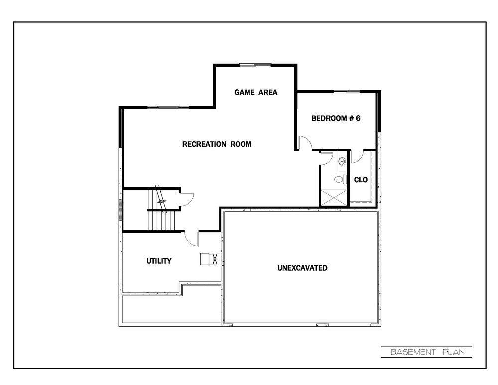
Come see why the Bradford is one of KEY LAND’s most popular home plans! It checks all the boxes. This home offers some unique features like a main floor bedroom suite that is perfect for weekend guests or even multi-generational living. The main floor also has a large flex room at the front of the home, expansive gourmet kitchen with an amazing L-shaped island, lovely family room and dining room that both open to the kitchen. Behind the kitchen is a walk-in pantry just off the mudroom which makes putting things away a breeze. The mudroom also has a walk-in closet, boot bench and access to the ¾ bath. Upstairs you will find 4 generous bedrooms. Two of the junior bedrooms share a jack-n-jill bath and the third junior bedroom has its own ensuite bath. The owner’s suite provides the luxury you need with a vaulted ceiling, ensuite bath with freestanding soaking tub, custom tile shower and super-sized walk-in closet. The closet also flows into the laundry room which is the perfect design. Rounding out the upper level is a large secondary home office, which could also be used as a playroom or entertainment room. Need even more space? The unfinished basement could be completed to add 1,168 more square feet. This is a home that you will love for many years to come!



