

Garage Stalls: 3
*This home will not be available for showing on Easter Sunday
Embrace a Life of Luxury and Comfortability in The Freeborn Model Home by David Weekley Homes
From its versatile and expansive spaces to its contemporary design mix of sophistication and playfulness, the two-story Freeborn floor plan by David Weekley Homes in Brayburn Trails East is ideal for growing families who enjoy entertaining.
The sense of welcome is apparent from the start with its charming exterior featuring contrasting siding and stone accents, along with an inviting recessed entryway. Inside, the floor plan is devoted to making connections, which is reflected in its open concept, uniting its adaptable study, family room, eat-in kitchen, dining room and sitting room. These spaces are all loaded with windows to flood them with natural light. A theme of calming colors echoes throughout its furnishings, and sage accent walls add visual interest in both the family room and along the kitchen island, contrasting against the clean white cabinets.
Open sight lines and flowing traffic patterns allow for breezy movement throughout to make entertaining guests and enjoying day-to-day activities all the more effortless. An outdoor deck continues to foster the theme of togetherness while providing an opportunity to enjoy the surrounding scenic views.
Upstairs, leave the outside world behind for the comforts of the secluded Owner’s Retreat, including a walk-in closet and a stylish en suite Owner’s Bath with an expansive shower. With a sitting area primed for morning cups of coffee, a textured bed wall and a brass chandelier hanging from the contrasting tray ceiling, the stage is set for a lifetime of memory-making.
Each themed secondary bedroom offers a playful theme to allow personal styles to shine. An expansive retreat with striped walls provides the ideal space to unwind after a long day, and a utility room on the second floor offers the ultimate convenience with no need to navigate stairs with baskets of clothes on laundry day.
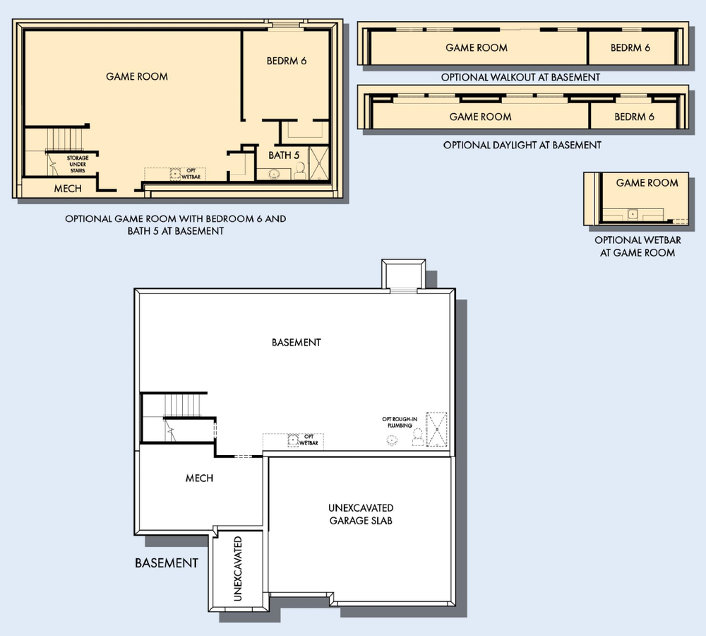
Downstairs, the spacious finished basement with a game room, bedroom and wet bar provides a comfortable space to relax, play games or host guests.
Begin your #LivingWeekley story by exploring The Freeborn in Brayburn Trails East today!



