

Garage Stalls: 0
Designed for year-round play & connection, this two-level sport court addition delivers high-energy fun w/ space to gather. The LL features a full rec. basketball court w/ nearly 20` ceilings & luxury bar. The UL expands the experience w/, game area, TV lounge & bunk room. Garage doors open to the patio, blending int. & outdoor living in a space built to grow w/ the family.
This sport court addition was designed to grow with the family, creating a place where kids can play hard now and everyone can stay connected for years to come. The homeowners wanted a space that kept their kids active, entertained, and at home year-round, while also becoming the go-to hangout for friends and family.
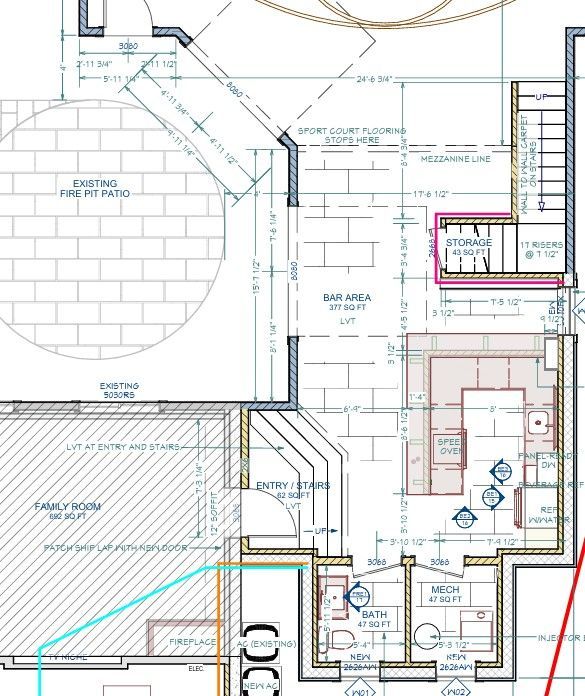
What began as a single recreation space evolved into a thoughtfully designed, two-level addition that delivers far more than a court. The upper level expands the experience with a kitchen, sleeping nook, game room, and TV lounge, making it easy to transition from high-energy play to relaxed gathering. Two oversized garage doors open directly to a new patio, creating a seamless indoor-outdoor connection and extending the space beyond the walls.
Basketball was the clear priority, both kids and adults play together at home and at school. Designing within HOA guidelines required early coordination and careful exterior planning, especially when accommodating nearly 20-foot ceiling heights. The result is an addition that blends naturally with the existing home while delivering the volume needed for true sport-court performance.
One of the most exciting aspects of this project was the opportunity to create an atmosphere entirely its own. Distinct materials, layered textures, dramatic angles, and custom details, including a hidden door, set this space apart from the rest of the home, making it a destination built specifically for this family’s lifestyle.
Because the home is a lookout rather than a walkout, access and flow were key challenges we solved together. After exploring multiple entry options, the final connection was made through the media room, preserving essential mechanical systems. To align the court with the patio level, a custom stair system was designed to create a natural and intuitive transition.
The result is a one-of-a-kind sport court addition that balances performance, design, and connection. Built for play today and memories that last well beyond it.



