

Garage Stalls: 2
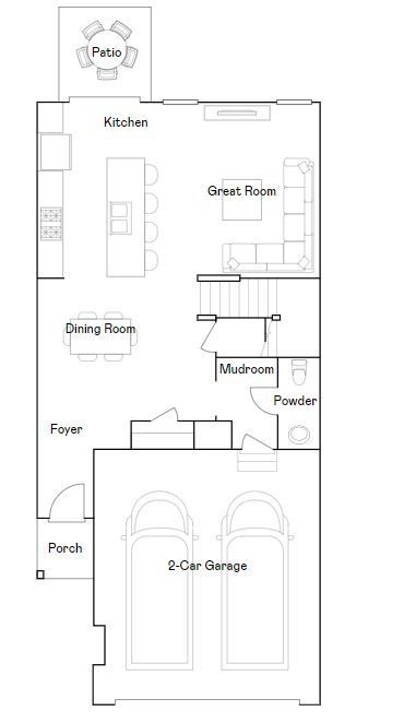
Welcome to Pioneer Commons Liberty–spacious townhomes near the Twin Cities! Explore our beautiful St. Clair model, featuring an open-concept main level, dining room, and back patio! This St. Clair model is an elegant, two-story townhome that has an open-plan layout on the first floor among the kitchen, dining room, and great room. The first floor also features a mudroom and a powder room. The second floor is home to 2 secondary bedrooms, the owner`s suite, and the laundry room.
The Liberty Collection in Pioneer Commons offers 2 unique townhome plans with HOA maintenance. Pioneer Commons is located in Little Canada, which features a variety of local stores and beautiful parks for recreational activities. Residents of this community are within close proximity to the Twin Cities as well as major retail hubs including The Village of Blaine Shopping Center.



